首页 宝鸡信息 宝鸡资讯

陕西宝鸡·“万疏山谷”民宿设计 / 超级理想

(来源:网站编辑 2024-10-24 14:23)
文章正文

民宿地址:陕西省宝鸡市太白县咀头镇塘口村九组6号;民宿房价:600-1500元/晚

或许因背靠秦岭,西安人习惯在家门口寻找一个具象的远方。2017年前后,伴随乡村振兴战略的实施,围绕住行和美好生活方式而展开的民宿营造最为活跃,呈现出由片段走向集群的进行时状态。当滑雪季来临,我们将目光对焦到距离西安市区190公里的鳌山滑雪场,在这里,民宿和建筑师绑定的愈加紧密,深入建筑营造、在地思考和意趣丛生的美学表达,使它看起来像是一件附着了更多耐心的作品,扎进土壤更深处。

山谷里的万疏气,唤醒鳌山的冬天

12月的太白县蒿谷堆村——地处秦岭第二主峰鳌山北麓,早晚气温已到零下,从万疏山谷民宿出来,清冽的寒气扑面而来,远山被笼罩在一片薄雾里,阳光下透着金色的光,目之所及,山腰处两条明晃晃的雪道唤醒了鳌山的冬天。

每到这个时候,大批滑雪爱好者会从各地赶来,而到了春夏,又有临近县市的居民出游,来此享受山间空气,于是,距离鳌山滑雪场最近的这条山路重新焕发生机,政府希望将这里打造成综合性山地乡村度假园区,村民们早一步参与其中,将自家宅基地改造成餐馆、民宿,一个小小的集合开始在山谷间诞生。

万疏的故事始于2022年,改造前是两院民房,如今是一个南北贯通、关联内外的院落建筑,兼具野性与秩序,出落于山野而又别具一格,在承载人居记忆和精神诉求的建筑风貌下,9间充满建筑感与艺术感的客房为它赋予了别样的气息。如何解读传统住居方式和在地文化,同时以低成本的条件满足建造需求是具体设计中要解决的重点,宜人的空间尺度和舒适的度假氛围构建起改造的整体逻辑,同时也向周围环境中延续,吸纳当地村民的生活痕迹,希望表达的更加自然。

▼场地原状:

循着这种理念,万疏在建筑形式上遵循了北方民居常见的以天井为动线的院落,总体上借鉴了传统格局,建成后的民宿,由两排平行分布的建筑体块围合而成,用回型廊连接两个体块,靠近公路的南侧体块属于宅基地改造,被规划为功能区,而靠近农田、更为安宁的北侧体块属于新建建筑,被规划为客房区,工区和私区被中庭庭院分隔开来,前后通过一个人字形的大顶统一在一起,简洁利落。

经过一系列梳理,建筑原有砖混结构的粗犷肌理得以保留,从远处看,收敛的外观与秩序之上叠加出新的意趣,让万疏十分协调的融入到了周围环境,更有趣的是对于空间动线的改造,使它看起来更像一个别有心意的当代空间,在鳌山山麓,这种带着在地思考和个人意趣的美学表达,实现得更为自然,也渐趋成熟。

一半严禁细腻 一半松弛诙谐

万疏成为恰到好处的提示,大到结构动线改造、视线与景观关系设计,小至通风窗、烟囱的排列方式,都有建筑学本体的痕迹。融入自然、融入乡村的不只是外在,走进其中,会发现更多尊重在地传统和自然风貌的设计巧思,他不刻意标新立异,而是让人在场景中感受到真实、舒适与差异。

中庭空间给人一种熟悉又新奇的体验,熟悉在于它采用常见的传统民居天井的形制,进行景观种植,使两个建筑体块增加了交流与缓冲的地带,保证中庭视野开阔的同时,也能够使南北视野通透,由内而外地建构人与周边环境的联系。新奇则在于建筑师在对院落与建筑立面的梳理中,释义自己对建筑美学的理解,借由对窗外视觉内容的筛选,人的视线与行为都被有选择的强化,一排玄挑而出的1.3m板面构成檐下空间,从室内外进入的关系和动线都强调了与室外屋檐下的互动关系。

▼分析图:

新旧两个建筑体块通过中庭形成对话,被有机串联起来,两侧的建筑立面则随功能而变化,设计在不突破原有建筑屋顶轮廓的基础上,对墙面功能进行了美学上的调整,巧妙的将木质门、窗、格栅强迫性地统一、串联,不同材质肌理分别对应着工区、设备和功能等不同分区,保持了立面上的连贯,也让视野范围内美的享受更为丰富,集秩序、细节、美感于一体,从有限之中延伸出关于「无限」想象。

在大堂的初见,就已经能看出万疏希望将建筑之美与有现代秩序的生活方式带入。整体动线以传统民居的回字形动线串联,室内也保持了同样的回字形,两个入口制造视线的穿透感和游弋的「曲折」感,中和钢结构的硬朗和格栅的温润,还特意在入户处预留了置物与停留区域,并将它们设置在视线的同一平面,不允许出现任何出挑的不适感。

大堂吧以一字型的简洁动线,将吧台、公共区、餐厅、厨房并置于一个功能带上,设计主要解决了空间中结构、动线与功能分布的问题。例如吧台是由窗台延伸出来,利用一个面带动所有功能;公共休闲区则将多余的墙面改造为两根立柱,尽可能保持室内外视野的通透感;木质家具保持与立柱、墙面共有的肌理和层次,让人感受到时间沉淀的闲适,足够的空间和私密性也允许褪去一天的运动疲惫后,在夜晚烛光里开始属于三五好友的微酌饮。

沿着公共区域行至西侧连廊,建筑师特意将这个过渡空间留作茶歇与艺术区,视线亦可穿透空间直接抵达空阔的野外,而转过身,中庭另一番景观也完全暴露在视野里。

打破传统 更有趣的入住体验

从建筑营造和区域规划的基础上,我们增加了一层轻盈有趣的游弋趣味,以满足当下更为私密、猎奇的独家体验,客房的设计反映了这样的初心,其中最具代表性的是进入二楼客房的动线规划。四间客房被分置于南北两侧,由一个Y字型楼梯相连,住客在此被分流,每套客房也因此拥有了独立的交通方式,彼此之间互不干扰。

与此同时,Y字型楼梯已成为庭院中一个耐人寻味的装置性景观,它外观轻巧简洁,最大程度纳入南北两侧的风景,目之所及,皆能感受到粗犷的田野景色与农村生活呼应的不同状态,光和风也得以在空间里更自由穿梭,框景的方式也是为了获得充足丰富的光线和室外景观。在有限的空间里,设计尽可能释放更多与周围环境的互动,拾阶而上,沿着楼梯南侧向前,经过二楼连廊,来到一个更为开阔的屋顶平台,建筑师在这里做了控制身体行为和视线的处理,露台屋檐的坡度和地面关系形成一定的呼应关系,人的视线被牵引到窗外的无限远处,可以欣赏到全角度的山景,人字形的大顶在建筑前排屋顶的基础上延伸,也延续了建筑屋顶和室内空间的关系。

而从楼梯的北侧进入,更能感受到「独家交通」的这种进入方式,以及与南侧不尽相同的乡野景观。以建筑思维设计室内空间,结构、动线与细节成为被考量的重点,设计师与业主达成一致,尽可能以空间换自由,最大的房间扩展至70㎡,细节之处,每个卫生间的窗型不遮挡视线为前提,实现了丰富的窗型变化。

房间内的整体布局温馨并兼具功能性,结构性的痕迹与软装充分互补,老榆木的窗棂与裸露的顶、柱、抛光的地面,搭配暖色手工砖、麻制的床品与沙发,以一种不过多打扰的方式,为住客营造更多不止于宿的美学体验,配合管家式的服务和地方风味,吸引更多精神同频的小伙伴前来打卡。

在鳌山北麓的实践,已陆续落成了阿丘小院、庐里民宿和万疏山谷民宿三个项目,它们恰巧相邻而建,如今也成为蒿谷堆村的一处风景和资源。这类以精品民宿为定位的独立品牌,往往更在意设计美学与生活方式的营造,这也是万疏最为人乐道的部分。民宿的美好之处不仅在于汇聚散落乡野里的好风景,还在当地村民与外来者共同营造的新社群关系,万疏邀请当地年轻人参与运营,厨房供应很local的当地风味,融入得十分熨帖,也恰到好处。

▼轴测图:

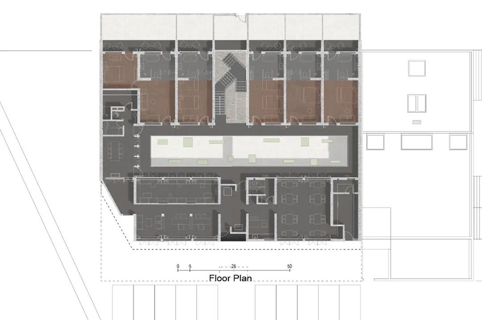
▼平面图:

▼立面图:

▼剖面图:

项目空间信息: 编辑版权©️SOHO设计区(sohodd.com),未经许可禁止以“SOHO设计区”编辑版本进行任何形式转载, (包括且不限于:媒体、网站、公众号等),如转载请注明转自“SOHO设计区网站”。所有项目照片/设计图形版权归原作者所有。 本站部分内容源自网络公开资源或用户分享,如若侵犯了原作者的合法权益,可联系我们进行处理。

首页
评论
分享
Top